Marine systems
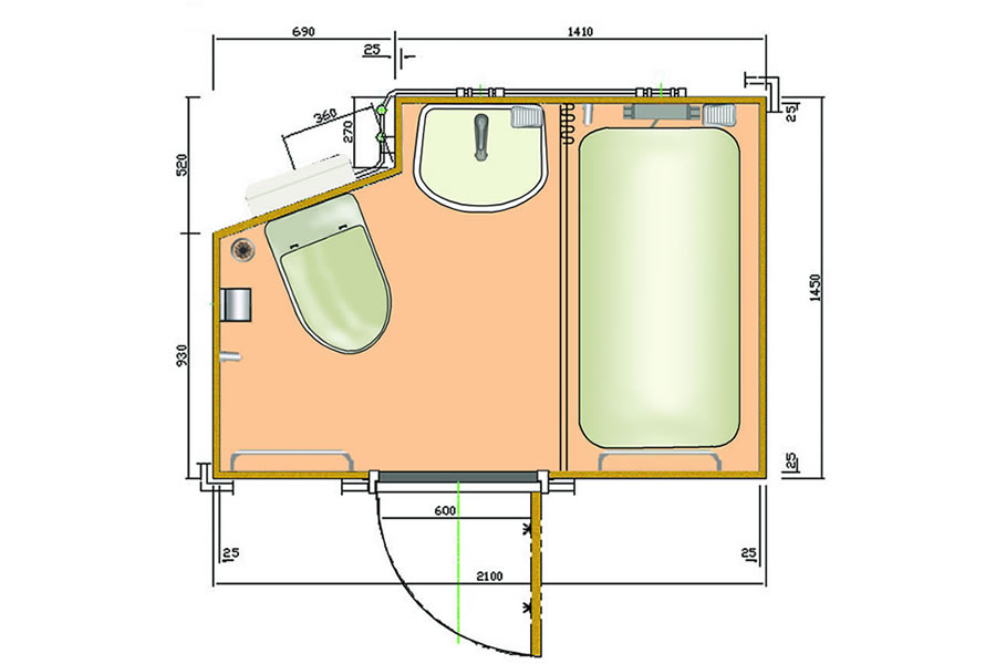
Bathroom pods
As a marine solutions specialist, we have also acquired an extensive experience in the design, development and production of prefabricated steel bathrooms pods.
Every ship is different and we are specialised in flexible design and development. We can support extremely varied requests and are fully equipped to give the ship builder all the necessary support during the design phase.
We put a lot of emphasis on detail, therefore can work with different design specifications, as well as functional or ergonomical restraints and demands.
